Tragwerksplanung
Projekt: Umbau Paunsdorf Arcaden
Konstruktionsbeschreibung:

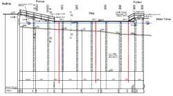
Das PaunsdorfCenter wurde Umfangreich revitalisiert, u.a. wurden Treppenhäuser verschoben, Decken geschlossen und geöffnet und große Öffnungen für kuppelartige Glasdächer geschaffen.
Um die neue Belastung so gering wie möglich zu halten und aufgrund der Systemspannweiten von 12,5m, wurde die Konstruktion als Stahl-Verbundkonstruktion mit Verbunddecken ausgeführt wo es möglich war.
Aufgrund der schwierigen Randbedingungen im Bereich der Lichthöfe (hier waren u.a. sehr strenge Verformungskriterien einzuhalten) wurde die Gründung zum Teil auf Mikroverpresspfählen vorgesehen.
Unsere Leistung:
Tragwerksplanung - Genehmigungsplanung und Ausführungsplanung für das Tragwerk für den Rohbauer des Generalunternehmers (Fa. Storck Baugesellschaft mbH) (2010-2013)
Projekt: Neubau MVZ Sittensen
Konstruktionsbeschreibung:
Der Neubau des Medizinischen Versorgungs Zentrums in Sittensen ersetzt das in die Jahre gekommene Bestandsgebäude. Die Konstruktion wurde so optimert, dass möglichst wenig Hindernisse für die Leitungsführung auftreten und so maximal nutzbare Raumhöhe verbleibt. Die Ausführung sollte aber dabei trotzdem auch für lokale Unternehmer durchführbar sein. Hierzu wurden deckenintegrierte Stahlträger vorgesehen, in die dann Halbfertigteile eingelegt wurden, die dann örtlich mit Aufbeton ergänzt wurden. Die Wände wurden aus Hochlochziegeln hergestellt, die in der Außenwand auch gleich zur Dämmung beitrugen.
Unsere Leistung:
Tragwerksplanung und Wärmeschutznachweis
Projekt: Siloanlage - Konstruktion
Konstruktionsbeschreibung:
Stahlsilos auf Pfahl-Plattengründung einer Getreidesiloanlage in Erdbebenzone II, Maschinenhaus wurde in Gleitbauweise in einem Zug erstellt.
Unsere Leistung:
Tragwerksplanung für die Gründung sowie das Maschinenhaus im Auftrag von WTM Engineers GmbH
Berechnungen als 3D-System für alle Lastfälle inkl. Modellierung unterschiedlicher Gründungsbereiche und Varianten aufgrund vorgefundener Inhomogenitäten des Bodens.
.Projekt: Wohnpark Eckhoffplatz
Konstruktionsbeschreibung:
Bei dem vorgesehenen Neubau handelt es sich um eine 5 bis 6 geschossige Wohnbebauung sowie eine 6-geschossiges Alten- und Pflegeheim. Die Obergeschosse werden vornehmlich mit vorgespannten Stahlbetonhohldielen auf Mauerwerkswänden errichtet. Das Untergeschoss, welches von einer gemeinsamen Tiefgarage gebildet wird, ist als Weiße Wanne ausgebildet. Etwas abgesetzt wird ein weiteres Gebäude mit einem Kindergarten und Wohnungen in 6 Geschossen errichtet. Beim Baugebiet handelt es sich um ehemaliges Deponiegelände, in der Gründung sind somit besondere Maßnahmen zu treffen.
Unsere Leistung:
Tragwerksplanung - Entwurfsplanung - Genehmigungsplanung
Projekt: Umbau Rahlstedt Center
Konstruktionsbeschreibung:
Das Rahlstedt Center wurde zu den Rahlstedt Arcaden umgebaut. Hierzu wurde ein Zwischengebäude errichtet, welches die zwischen den zwei Gebäudeteilen fließende Wandse überspannt. Außerdem wurden die vorhandenen Lichthöfe geschlossen und eine neue Mall eingebaut, welche von oben durch neue Glasaufbauten belichtet wird.
Um die neue Belastung so gering wie möglich zu halten, wurde die Konstruktion als Stahl-Verbundkonstruktion mit Verbunddecken ausgeführt. Trotzdem wurden einige Fundamentverstärkungen notwendig. Die vorhandene Fertigteilkonstruktion musste in Teilbereichen zurückgebaut und durch neue Konstruktionen ersetzt werden.
Aufgrund der schwierigen Randbedingungen im Bereich der Wandse wurde der Zwischenbau auf Mikroverpresspfählen gegründet.
Unsere Leistung:
Tragwerksplanung - Genehmigungsplanung und Ausführungsplanung für das Tragwerk für den Rohbauer des Generalunternehmers (Fa. Storck Baugesellschaft mbH)
Projekt: Neubau Schützenhaus Tötensen
Konstruktionsbeschreibung:
Der Schützenverein Tötensen - Westerhof und Umgegend v. 1895 e. V. plant den Neubau seines Schützenhauses. Das Bauwerk wird in Mauerwerksbauweise mit Nagelplattenbinder für den Dachstuhl geplant. Die Gründung erfolgt als Flachgründung.
Unsere Leistung:
Gesamtplanung inkl. Ausschreibung und Bauleitung
Projekt: Teilerneuerung Rudersteg
Konstruktionsbeschreibung:
Die Schüler-Ruderbrücke an der Kiellinie muss erneuert werden. Die vorhandene Holzkonstruktion ist stark angegriffen und wird durch eine Stahlkonstruktion mit GFK-Belag ersetzt.
Unsere Leistung:
Tragwerksplanung im Auftrag von MIC - Merkel Ingenieur Consult NL Kiel


